0

EXCLUSIVITE 2024 TERRAIN 450 M2 HYPER CENTRE CRAPONNE AVEC PC MAISON PLAIN PIED

Craponne (69290)
Réf : 5517AA

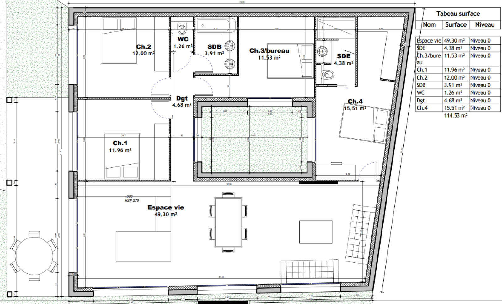
CRAPONNE ETE 2024 LE RESEAU OUEST IMMO vous propose sur la belle commune de Craponne, à 5 min à pied du centre ville avec ses commerces, les écoles et les bus TCL, un magnifique terrain plat , vendu 299 000 E pour un projet de maison d'architecte neuve de plain pied, avec toit terrasse, d'une surface de 115m², sur une belle parcelle de terrain de 450m² plat, clos de mur et orientée sud. ( maison non comprise dans le prix de vente du terrain )

Vous trouverez dans ce projet de villa , une piece de vie spacieuse , offrant de nombreuses ouvertures vitrées, 4 belles chambres, dont une suite parentale avec dressing et salle de douche.

Un patio au milieu de la maison, fait de ce bien une propriété unique .Le Jardin plat est piscinable. Le projet est libre constructeur et le permis de construire obtenue et purgé qui est transféré gratuitement à l'acquéreur.

Pour visiter, contactez nous sans tarder FRANCK MORICHON 06.51XXXX98.82.70 , SOLENE ESCARABAJAL 0x6.8x2.3x9.6x1.1x6 , BERNARD MONTILLET 06.67.XXXX11.22.11


LE RESEAU OUEST IMMO c'est 5 agences sur l'Ouest Lyonnais, des honoraires réduits, une ouverture 7/7 en NON STOP 8/20H, mais c'est surtout l'agence du choix avec une trentaine de terrain disponibles libres de constructeurs.

Prix du bien 480 000 €
Pièce(s) 5
Chambre(s) 4

Caractéristiques du bien

Caractéristiques Valeurs
Code postal 69290
Surface habitable (m²) 115 m²
surface terrain 450 m²
Surface loi Carrez (m²) 115 m²
Nombre de chambre(s) 4
Nombre de pièces 5
Nombre de niveaux 1
Vue arborée
Nb de salle de bains 1
Nb de salle d'eau 1
Cuisine Américaine
Interphone NON
Visiophone OUI
Terrasse NON
Exposition Sud
Année de construction 2024
Quartier Centre
Terrain piscinable OUI
Terrain arboré OUI

Infos financières

Caractéristiques Valeurs
Prix de vente honoraires TTC inclus 480 000 €

Bilans énergétiques

DPE GES
Ce bien vous intéresse ?
Fieldset par défaut
Fieldset par défaut
Validation

* Champs obligatoires

Contacter l'agence
Validation
Les informations recueillies sur ce formulaire sont enregistrées dans un fichier informatisé par La Boite Immo agissant comme Sous-traitant du traitement pour la gestion de la clientèle/prospects de l'Agence / du Réseau qui reste Responsable du Traitement de vos Données personnelles.
La base légale du traitement repose sur l’intérêt légitime de l'Agence / du Réseau.
Elles sont conservées jusqu'à demande de suppression et sont destinées à l'Agence / au Réseau.
Conformément à la loi « informatique et libertés », vous pouvez exercer votre droit d'accès aux données vous concernant et les faire rectifier en contactant l'Agence / le Réseau.
Si vous estimez, après avoir contacté l'Agence / le Réseau, que vos droits « Informatique et Libertés » ne sont pas respectés, vous pouvez adresser une réclamation à la CNIL.
Nous vous informons de l’existence de la liste d'opposition au démarchage téléphonique « Bloctel », sur laquelle vous pouvez vous inscrire ici : https://www.bloctel.gouv.fr 
Dans le cadre de la protection des Données personnelles, nous vous invitons à ne pas inscrire de Données sensibles dans le champ de saisie libre
Ce site est protégé par reCAPTCHA, les Politiques de Confidentialité et les Conditions d'Utilisation de Google s'appliquent.