0

ETE 2024 RARE - MAISON FAMILIALE 113M² PLAIN PIED SUR UNE PARCELLE DE 450M²

Brindas (69126)
Réf : 5518i

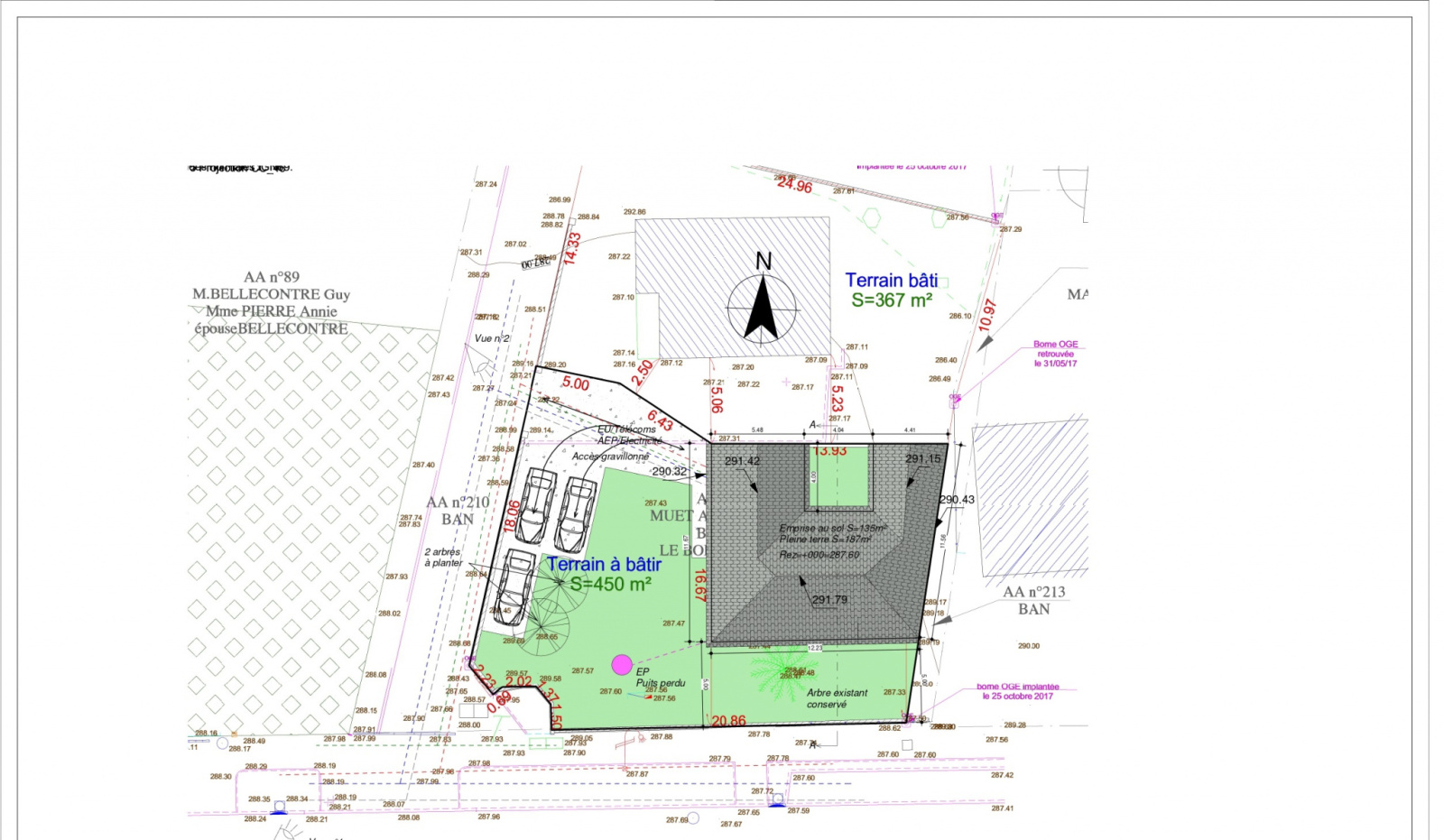
RESEAU OUEST IMMO NOUVEAUTÉ JUILLET 2024, vous propose en exclusivité un projet de villa de 113m2 sur un terrain libre constructeur , en hyper-centre de Craponne, d une surface de 450m².

A proximité immédiate des commerces et des transports en communs (C24 Lyon Gorge de Loup – Grézieu-la-Varenne) vous serez séduit par son emplacement de premier choix au cœur de la commune.

Ce terrain est rectangulaire , plat et orienté sud , est vendu avec un permis de construire obtenu et purgé de tout recours.

Le permis offre une maison entièrement de plain-pied de 113m2 au format familial.

Composée d’un espace de vie XXL de 70m², 3 chambres dont une suite parentale avec salle d’eau adjacente, une salle de bain et un wc indépendant.

Un patio est situé au nord de la maison et sera parfait pour accueillir les siestes d’été au frais. Une 4eme chambre est possible.

Le terrain est proposé au prix de 339000€ et est vendu non viabilisé.

Zonage Uri1A avec coefficient de pleine terre de 25% et 40% d’emprise au sol.

Pour visiter ne tardez plus et contactez Bernard MONTILLET 06 67 11 22 11 ou Eva CARNELOS 06.34.08.81.ss69, Laurine MARCOUX 06.23.27.03cc35 FRANCK MORICHON 06.51XX.98.82.70 .vv11

Prix du bien 500 000 €
Pièce(s) 4
Chambre(s) 3

Caractéristiques du bien

Caractéristiques Valeurs
Code postal 69126
Surface habitable (m²) 113 m²
surface terrain 450 m²
Surface loi Carrez (m²) 113 m²
Nombre de chambre(s) 3
Nombre de pièces 4
Vue dégagée
Nb de salle de bains 3
Nb de salle d'eau 2
Cuisine Américaine
Mode de chauffage Aérothermique
Type de chauffage Air pulsé
Format de chauffage Individuel
Interphone OUI
Visiophone NON
Nombre de parking 3
Exposition Sud-Ouest
Année de construction 2024
Terrain piscinable OUI
Terrain arboré OUI

Infos financières

Caractéristiques Valeurs
Prix de vente honoraires TTC inclus 500 000 €

Bilans énergétiques

DPE GES
Ce bien vous intéresse ?
Fieldset par défaut
Fieldset par défaut
Validation

* Champs obligatoires

Contacter l'agence
Validation
Les informations recueillies sur ce formulaire sont enregistrées dans un fichier informatisé par La Boite Immo agissant comme Sous-traitant du traitement pour la gestion de la clientèle/prospects de l'Agence / du Réseau qui reste Responsable du Traitement de vos Données personnelles.
La base légale du traitement repose sur l’intérêt légitime de l'Agence / du Réseau.
Elles sont conservées jusqu'à demande de suppression et sont destinées à l'Agence / au Réseau.
Conformément à la loi « informatique et libertés », vous pouvez exercer votre droit d'accès aux données vous concernant et les faire rectifier en contactant l'Agence / le Réseau.
Si vous estimez, après avoir contacté l'Agence / le Réseau, que vos droits « Informatique et Libertés » ne sont pas respectés, vous pouvez adresser une réclamation à la CNIL.
Nous vous informons de l’existence de la liste d'opposition au démarchage téléphonique « Bloctel », sur laquelle vous pouvez vous inscrire ici : https://www.bloctel.gouv.fr 
Dans le cadre de la protection des Données personnelles, nous vous invitons à ne pas inscrire de Données sensibles dans le champ de saisie libre
Ce site est protégé par reCAPTCHA, les Politiques de Confidentialité et les Conditions d'Utilisation de Google s'appliquent.